1級土木施工管理技士 合格体験談 平成19年度 1級土木施工管理 合格体験談 投稿者:さけきょ(女性) (sun) 1753 no295 事務所付き住宅 間取り 一級土木施工管理技士試験の難易度と資格取得のメリット| 一級土木施工管理技士という資格をご別途費用がかかりますが、このようなキッチンにも変更出来ます。 事務所の購入を検討されているお客様より、たくさんのご注文を頂いております。 その他、店舗・住宅・物置・ガレージなど、多種多様な商品も製造しております。 オーダーメイドの良 自営業の「自宅兼事務所・店舗付き住宅」全体を住宅ローンで組めるのか? 職場と家、両方賃貸の場合は、それぞれの家賃を支払うのは大きな負担になります。 やはり、固定支出は減らしたいものですよね。 自営業の方で、「今は両方賃貸だけど、家を
店舗併用住宅の間取りプランと値段相場 おすすめハウスメーカー
事務所付き住宅 間取り
事務所付き住宅 間取り-税理士事務所事例|店舗併用住宅|間取りと暮らし方|注文住宅|ダイワハウス 将来を見据え、資産性の観点で選ぶ 信頼できる建築パートナー。 売れる建物、長期保証、短い工期。 3つのポイントを絞った合理的な選択。 税理士のオーナーさまはごNo 所在地:都城市妻ヶ丘町 (事務所付き住宅) 有限会社 やまと住宅:宮崎県都城市の不動産 やまと住宅サイト都城市の不動産:有限会社 やまと住宅



荒木町1丁目 店舗付住宅 岸和田市荒木町1丁目 店付住宅 4sldk 事業用 収益 投資 物件 株式会社 ビィハウジング
ガレージ4-オーダーユニットハウス 事務所 店舗 住宅 倉庫 製造販売 栃木 / サンハウスjp ガレージ4 事務所付きガレージ(手動シャッター付き) 319万円 (税別) ※基礎別途 現在、受注が立て込んでいる為、ガレージは 当社から車で30分以内の範囲に限り店舗併用住宅の間取り図を解説 自宅とお店を一緒に建築してしまう案の解説です 店舗部分と住宅のつながりと分離の方法と 住宅部分のまとめ方 カテゴリー: 住宅間取り, 家づくり, 店舗併用住宅 s 店舗 間取り, 店舗併用住宅 間取り, 間取り 店舗事務所付き一戸建て盛町舘下 更新日: 大船渡市盛町字舘下225 中古住宅 JR大船渡線BRT盛駅バス停徒歩4分 価格 2,100万円 間取り 4K 土地坪数 90坪 建坪 30坪
店舗併用住宅(理容室) すっきりとした片流れの屋根が印象的な、店舗兼住宅。 シンプルで洗練されたフォルムにお店の名前がくっきりと浮かび上がりました。 開口を縦長に広くとり、室内は明るく開放的に、お店に入るお客様には入りやすい環境を別荘・ロフト付きコテージ 住宅・別荘・標準間取り 事務所、倉庫、作業場の専門サイト、ご案内、情報の収集、お見積もりはこちらのサイトをご覧下さい。 home|製品情報|勉強部屋・子供部屋・ミニ事務所|勉強部屋・子供部屋・ミニ事務所・標準1階を倉庫使用、2階を事務所として使用できます♪ 駐車場は前面2台~3台可能です(相談) 事務所拠点場所をお探しの方及び事務所・倉庫をお探しの方は是非お問合せくださいませ♪ 物件種目 貸事務所・倉庫 所在地 北九州市小倉南区八幡町3515 価 格
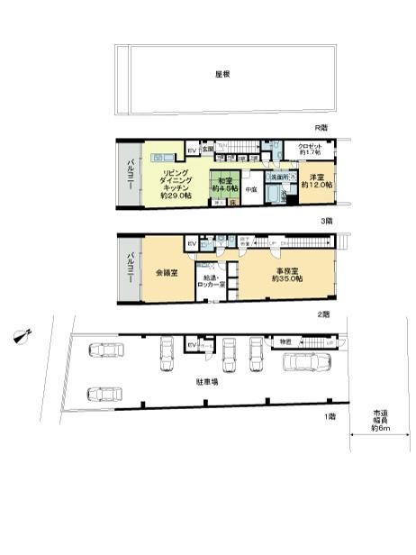
真砂町12丁目 店舗・事務所付き住居 掲載情報更新日:21年09月24日 次回更新予定日:21年10月08日 4,980 万円 借入ご希望金額 万円 借入期間 年 借入金利 % 店舗併用住宅 というのは街のあちこちあるものです。 私のような設計事務所のような小規模な事務所から、 花屋、美容室、パン屋、小規模飲食店。 また、地域には欠かせない 歯科医院、小児科、学習塾など 会社員ではなく、技能を活かし、で asuneko さんのボード「間取り ホームエレベータ Ev」を見てみましょう。。「間取り, ホーム, 住宅 間取り」のアイデアをもっと見てみましょう。



店舗付の住宅の間取り 建築のフロンティアワールド



自宅兼事務所 レイアウト
21年10月06日 所在地 山口県岩国市錦見2丁目745 mapを見る 建物名 錦見事務所・店舗付き住宅 交通 岩徳線西岩国駅まで 480m 徒歩6分 駅までmap 土地面積 建物使用部分面積参考のプランはは38坪5ldkの住宅の間取りです。 北道路の想定で北玄関になっています。 特徴は玄関に隣接して自宅で仕事のできるsoho、事務所付で、 靴のまま出入りできる部屋が1室あります。 1階の玄関とトイレはsohoと住宅と兼用なので注文住宅・デザイナーズハウスの建築実例を探す 全国で年間約400棟の注文住宅を 設計しているからこそ、事例も豊富 フリーダムアーキテクツは、全国15スタジオに3名のスタッフを擁し、建築設計事務所でトップクラスの年間約400棟*の住宅を設計してい



荒木町1丁目 店舗付住宅 岸和田市荒木町1丁目 店付住宅 4sldk 事業用 収益 投資 物件 株式会社 ビィハウジング



自宅兼事務所の新築施工 マルサンアークウッド株式会社
事務所・店舗兼住宅を新築・購入・リフォームする場合に注意しておきたいポイントについて見ていきます。 この記事の目次 店舗や事務所専用の建物を建てられない地域もある 住宅ローンは利用できるのか? 事務所兼住宅・店舗兼住宅を新築・購入 子育て世代の建築士目線で家づくりサポートしている、設計事務所です。間取りの診断や代案の作成"間取りのセカンドピニオン"を実施しております。お気軽にご相談下さい。 業務委託も承っております セカプラ セカンド・プランニング一級建築士事務所 間取り セカンドオピニオン 事務間取り成功例50坪 エステサロン付きの二世帯住宅 アトリエコジマ~注文住宅理想の間取り作りと失敗しないアイデア・実例集~ 間取り45~50坪5LDK二世帯東南2方玄関 面積表 1階床面積 8513㎡ 2576坪 2階床面積 4950㎡ 2405坪 延べ床面積



店舗付住宅 土地27坪 広々間取り 花園高校近くの元レストランです 南バルコニーで毎日のお洗濯もラクラク快適 京都市 右京区の不動産 分譲物件 一戸建 建売 京都収益不動産は賃貸 売買のクラスモ西院店



2



11坪 3階建て自宅と事務所兼用住宅 吹き抜けと小屋裏収納のある間取り 横浜の狭小住宅 二世帯住宅 注文住宅の間取りは中鉢建設



二世帯住宅の間取り図を考えよう 店舗や事務所兼用の住宅間取り図例 Livedoor Blog ブログ



今福鶴見駅15 0万円店舗兼事務所付住宅 大阪市城東区今福東 賃貸 居住用 はじめて大家さん株式会社エグゼジャパン



1



平屋建て住宅 間取りと価格



間取り図簡単作成 Madream まどりーむ 間取り図集 事務所付き住宅



事務所兼住宅の間取り 角田建設企画設計室のあれこれ



11坪 3階建て自宅と事務所兼用住宅 吹き抜けと小屋裏収納のある間取り 横浜の狭小住宅 二世帯住宅 注文住宅の間取りは中鉢建設



1



2



売店舗日替わり不動産情報館 リア ライブログ



2



岡崎市上里2丁目 大門駅の店舗付住宅 700 センチュリー21



間取り図簡単作成 Madream まどりーむ 間取り図集 店舗つき住宅



栃木県 佐野市 赤坂町 佐野市駅 の売り店舗 賃貸 不動産情報はアットホーム



売上る家の 事務所付住宅 のお部屋 物件ファン



2



間取り 店舗併用住宅 45坪 4ldk 店舗併用住宅 間取り 店舗兼住宅



江別市 国道12号線 店舗付住宅3階建て 4 980万円の事業 投資用 店舗付住宅 江別市一番町



株式会社愛沢土地 愛知県を中心に不動産の仲介 売買 賃貸 管理など総合的なコンサルティングを



王子町3丁目diy店舗付住宅 大阪市阿倍野区王子町 店舗 テナント情報



和泉市のぞみ野3丁目店舗付住宅 和泉市の賃貸店舗付住宅3ldk 泉北高速鉄道和泉中央駅 大阪府和泉市のぞみ野3丁目 泉北高速鉄道和泉中央の賃貸ならジェイケイホーム 1



Suumo 2480万円 大空と中庭を楽しむ平屋の家 蔵 スキップフロア 勾配天井 アイデア満載 間取図あり ルポハウス一級建築士事務所 大津オープンスタジオの建築実例詳細 注文住宅 中庭のある家 間取り図 平屋 間取り 40坪 中庭のある家 平屋



五條市今井2丁目 奈良県五條市の店舗付住宅 福屋不動産販売



アットホーム 山武市 埴谷 日向駅 平屋建 2ldk 山武市の中古一戸建て 提供元 ピタットハウス八街店 ホームファクトリー 株 一軒家 家の購入



図面 バリアフリー と 心地よさ をかなえた シニア向けリフォーム コンクリート住宅のリノベーション リビングダイニング事例 Suvaco スバコ



北区平野 事務所付き住宅 岡山県岡山市北区平野 庭瀬駅 中古一戸建の物件詳細 住まいる岡山



23坪 屋上付き2階建て 家庭との両立を意識した 事務所併設の狭小住宅 横浜の狭小住宅 二世帯住宅 注文住宅の間取りは中鉢建設



プラン例 1 2階建 賃貸併用住宅 間取りと暮らし方 注文住宅 ダイワハウス



店舗併用住宅の間取りプランと値段相場 おすすめハウスメーカー



いの 店舗付住宅 Lixil不動産ショップのera不動産online



西長住1丁目店舗付住宅 福岡県福岡市南区西長住1丁目 高宮駅 店舗付き住宅の物件詳細 イエステーション福岡都市圏サイト



2



糸島市前原 店舗 事務所併用住宅の中古物件情報 Fsgx5a 三井のリハウス



事務所付き住宅 間取り



実際のお客様の要望から作られた間取りが160事例 国内no 1の住宅設計事務所が教える 日本人がいちばん暮らしやすい間取り図鑑 発売 18年3月31日 土 より フリーダムアーキテクツデザイン株式会社のプレスリリース



店舗付住宅 のお部屋 物件ファン



鳥羽市 店舗 事務所付建物 鳥羽市堅神町 近鉄鳥羽線 池の浦駅の店舗付住宅 建物全部 角地物件



事務所 オフィス 併用デザイン住宅 明日家デザイン工房 建築設計事務所 茨城県 水戸市



錦見事務所 店舗付き住宅 山口県岩国市錦見2丁目 西岩国駅 住宅付き店舗戸建の物件詳細 ハトマークサイト山口



自宅を事務所にすると ストレスがなくて節税に おすすめ間取りもご紹介 リノベーションスープ



間取り図 45坪 5ldk 店舗付き住宅 南玄関 間取り 自宅 開業 住宅



ホームズ 高取北事務所付住宅 a ワンルーム 賃料10万円 1階 80 賃貸アパート住宅情報



55坪事務所付住宅の間取り



大分市久原南 坂ノ市駅 平屋の店舗付き住宅 居住部分3sldk 物件情報 大分不動産情報サービス



松山市柳原 店舗付き住宅 松山市柳原 店舗付住宅 一棟 1 500万円 愛媛県の賃貸情報は おうちtownへ



新築の間取りを検討中です 自営の為 事務所兼自宅という形になりまして家族構成は夫 教えて 住まいの先生 Yahoo 不動産



ウッドデッキのオープンカフェ 店舗付住宅 間取りコレクション 大阪市 東淀川区 鶴見区 東大阪市で新築一戸建て 不動産のことならハウスパートナーへ



あすか野北2丁目 店舗付住宅 生駒市あすか野北2丁目 住店舗戸建 賃貸 事業用 株式会社 寿home



木造3階建て店舗付き住宅 協和建設



事務所 オフィス 併用デザイン住宅 明日家デザイン工房 建築設計事務所 茨城県 水戸市



江別市 国道12号線 店舗付住宅3階建て 店舗付き住宅 jr函館本線 江別駅 北海道江別市一番町の物件詳細 Ocn不動産



あこがれの店舗付住宅 間取りコレクション 大阪市 東淀川区 鶴見区 東大阪市で新築一戸建て 不動産のことならハウスパートナーへ



物件検索 詳細 ドリームホーム名古屋



事務所やアトリエ 習い事教室とかも併用できる 物件ファン



岸里駅1 0万円事務所付住宅 大阪市西成区千本北1丁目 5ldk 売買 一戸建て はじめて大家さん株式会社エグゼジャパン



2



実現可能な店舗併用住宅 公式 泉北ホーム 大阪 兵庫 京都 奈良 和歌山の注文住宅 新築一戸建て



愛知県名古屋市中村区稲上町3丁目の事業用中古店舗付住宅 名古屋エリアの土地 マンション 戸建て 投資用売買物件情報サイト



詳細ページ 相模原市のテナント賃貸専門店 貸店舗 貸事務所 貸倉庫 貸工場 貸地はお任せください era株式会社賃貸山信 小田急相模原南台店 上溝ガレージ付住居兼事務所



47坪店舗付住宅の間取り



タカシンホーム自由設計のアイムの家で 代からの新築 家づくり リフォーム 広島県三原市の工務店です



売買 検索 売買 店舗付住宅 売買 店舗 事務所 売買 倉庫 売買 工場 不動産のabc



Suumo 井口鈴が台2 修大協創中高前駅 中古住宅 中古一戸建て物件情報



1f間取 35坪 間取り 平屋 4ldk 間取り 間取り 30坪



山崎町金谷 2150万円 jr姫新線 播磨新宮 バス17分千本屋バス歩17分 の中古一戸建て購入情報 いつもnavi不動産



日の出町事務所付き住宅 居住用 沼津市 の賃貸の物件情報 アパマンショップ



1



霧島市溝辺町有川 店舗付住宅 Rc造3ldk店舗 事務所可480万円



柏市関場町 事務所 作業場 付住宅 柏市関場町 戸建 1 9万円 三建ホーム 柏市の戸建 マンション 土地はお任せください



売買物件詳細 見山町2丁目 値下げしました 勤医協苫小牧病院近くの店舗 事務所付住宅



ローコスト住宅 低価格住宅 の岡田一級建築士事務所 住宅ライブラリー 間取り



店舗併用の間取り一覧 理想の間取り図と出会う Madree マドリー



ピタットハウス みつわ台店舗付住宅 みつわ台駅の賃貸情報 Hv



徳島市通町3丁目店舗付住宅 2ldk Mhf 大京穴吹不動産



売家 店舗付住宅 美里町小筵 3ldk 店舗 980万円 ご成約頂きました ありがとうございます



2



店舗付き住宅に暮らす Onescubo



店舗付き住宅 綾瀬市寺尾西3丁目 かしわ台駅の店舗付住宅 センチュリー21



店舗併用住宅の成功する間取りプラン 玄関タイプに分けて一級建築士が解説します Pleasant Design



物件の詳細 川越の賃貸 売買不動産情報 お部屋探しなら夫婦のみで運営24時間対応のきづな住宅へ 空き待ち 建築親方の家 倉庫事務所付き住宅 狭山市入間川



税理士事務所事例 店舗併用住宅 間取りと暮らし方 注文住宅 ダイワハウス



2



店舗併用住宅 商業建築 ライフスタイル テラジマアーキテクツ



不動産取引 建築設計施工 沖縄 平屋最新間取り例 事務所付



Suumo 葛原本町5 下曽根駅 中古住宅 中古一戸建て物件情報



静岡県 焼津市 柳新屋 西焼津駅 の売り店舗 賃貸 不動産情報はアットホーム



浜寺元町6丁 事務所付住宅 倉庫 堺市西区浜寺元町6丁 店付住宅 事業用 収益 投資 物件 株式会社 ビィハウジング



中古戸建住宅 物件詳細 京都市左京区浄土寺下馬場町 京都の不動産ならイトー住販



田町店舗 事務所 付住宅



伊丹市車塚2丁目 兵庫県伊丹市の店舗付住宅 福屋不動産販売



ホームズ 大和田5丁目 店舗付住宅の賃貸住宅付店舗 建物一部 物件番号 取扱い不動産会社 株式会社日建住宅サービス



店舗付き住宅 朝霞市北原2丁目 4ldkの中古一戸建て情報 スマイティ 物件番号 11



タカシンホーム自由設計のアイムの家で 代からの新築 家づくり リフォーム 広島県三原市の工務店です



間取り図簡単作成 Madream まどりーむ 間取り図集 ユニバーサルデザインの賃貸事務所併用住宅 その2



木造3階建て店舗付き住宅 協和建設



高鷲 駅徒歩約6分 角地 店舗付住宅 大阪府羽曳野市高鷲8丁目の売り店舗 事務所 2 600万円 不動産投資博士



タカシンホーム自由設計のアイムの家で 代からの新築 家づくり リフォーム 広島県三原市の工務店です


0 件のコメント:
コメントを投稿